Objektdaten
Preise
Kaufpreis
495.000 €
Kaufpreis pro m²
1.337,84 €
Käuferprovision
3,57 % inkl. der gesetzl. MwSt., bezogen auf den Kaufpreis
Informationen
verfügbar ab
nach Absprache
Vermietet
Flächen
Wohnfläche
ca. 370 m²
Zimmer
18
Grundstücksfläche
ca. 213 m²
vermietbare Fläche
ca. 370 m²
Zustand und Bauart
Baujahr
1955
Zustand
gepflegt
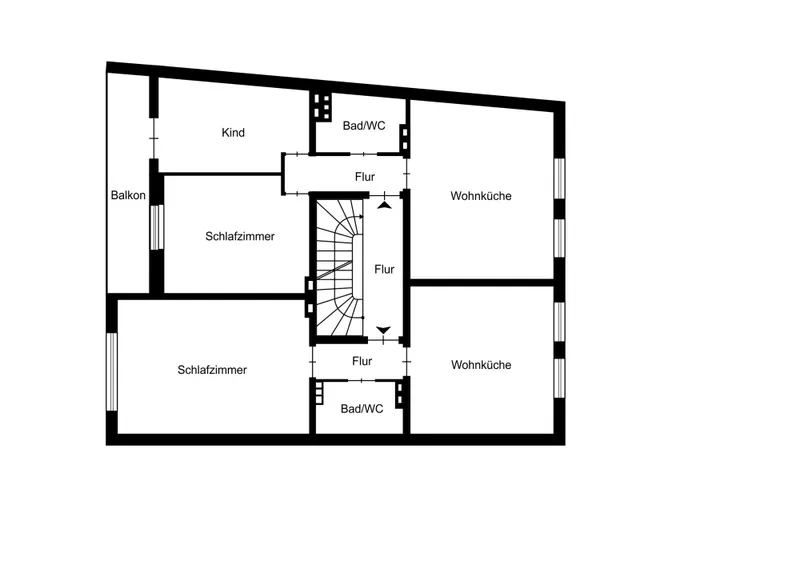
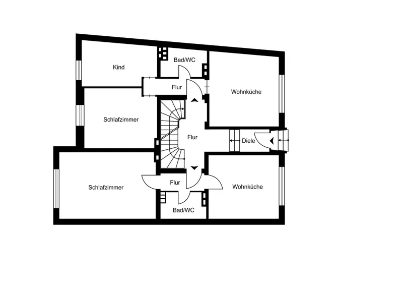
Räume, Flure und Etagen
Etagen
3
Badezimmer
6
Terrassen
1
Beschreibung
* Baujahr ca. 1955/1956 – solide Bauweise mit modernisiertem Charakter * Umfassende Sanierung in den Jahren 2005/2006 (Erneuerung der Elektrik und Modernisierung der Bäder) * Insgesamt 6 Wohneinheiten mit einer Wohnfläche von ca. 370 m² * Grundstücksgröße ca. 213 m² – kompakt und pflegeleicht * Ausgestattet mit doppeltverglasten Kunststofffenstern für gute Energieeffizienz * Moderne Gas-Zentralheizung, erst vor rund 2 Jahren erneuert * Balkone und Terrasse bieten zusätzlichen Wohnkomfort im Freien * Keller mit praktischen Abstell- und Lagermöglichkeiten * Attraktive Jahresmieteinnahmen von ca. 25.000 € – interessante Kapitalanlage mit solider Rendite
Lage
Die Wohnlage überzeugt durch ihre zentrale Infrastruktur und die sehr gute Erreichbarkeit aller wichtigen Einrichtungen des täglichen Lebens. Einkaufsmöglichkeiten, Gastronomie, Schulen, Kindertagesstätten und medizinische Versorgung befinden sich in unmittelbarer Nähe und tragen zu einer hohen Lebensqualität bei. Durch die ausgezeichnete Anbindung an den öffentlichen Nahverkehr sowie die schnellen Wege zu den überregionalen Verkehrsachsen ist die Lage zudem für Berufspendler attraktiv. Diese Vorzüge machen die Wohnlage besonders interessant für Mieter, sodass es sich bei der Immobilie um ein attraktives Angebot für Kapitalanleger handelt.
41061 Mönchengladbach
Die Karte dient lediglich als Orientierungshilfe und stellt nicht die exakte Lage dar. Die vollständige Adresse erhalten Sie bei uns.
Energieausweis
Energiedaten
Energieausweistyp
Verbrauch
Gültig bis
2035-09-14
Energieeffizienzklasse
D
Baujahr
1955
Wesentlicher Energieträger
ERDGAS_LEICHT
Befeuerungsart
Gas
Heizungsart
Zentralheizung
Energieeffizienz
A+
A
B
C
D
E
F
G
H
0
30
50
75
100
130
160
200
250
Endenergieverbrauch
129,9 kWh/(m²a)