Zum Hauptinhalt springenZum Footer springen

Modern saniertes Haus mit Garage, Terrasse & flexiblem Wohnkonzept (Ein-/Zweifamilienhaus)

41372 Niederkrüchten

Objekt-Nr.:JO-IM14479

425.000 €

Kaufpreis

Objektdaten

Preise

Kaufpreis

425.000 €

Kaufpreis pro m²

3.046,36 €

Käuferprovision

4,76 % inkl. der gesetzl. MwSt., bezogen auf den Kaufpreis

Flächen

Wohnfläche

ca. 144,59 

Zimmer

4

Nutzfläche

ca. 132,87 

Gesamtfläche

ca. 144,59 

Grundstücksfläche

ca. 355 

Zustand und Bauart

Baujahr

1960

Zustand

teil/vollrenoviert

Räume, Flure und Etagen

Etagen

2

Badezimmer

4

Balkone

1

Terrassen

2

Stellplätze

Freiplatz

1

Garage

1

Beschreibung

* Komplett kernsaniert ab 2021 (technisch & optisch) * Flexible Nutzung: Einfamilienhaus, Zweifamilienhaus oder Kapitalanlage * Zwei nahezu identische Wohneinheiten * Offene Wohn- und Küchenbereiche in beiden Einheiten * Je Einheit: Schlafzimmer mit Ankleide, Bad + Gäste-Duschbad * Ausgebauter Dachbereich (zusätzliche Nutzfläche) * Voll unterkellert

Ausstattung

Neue Dachdämmung & gedämmte Fassade * 3-fach verglaste Fenster * Erneuerte Leitungen & Elektrik * Zwei Gas-Brennwertheizungen (je Einheit separat) * Solarthermie zur Warmwasserunterstützung * Klimaanlage * Hochwertige Vinylböden in Holzoptik * Moderne, zeitlose Badezimmer * Helle, freundliche Raumgestaltung * Terrasse mit Gartenfläche * Überdachte Terrasse / Carport * Garage + zusätzlicher Stellplatz

Lage

Die Immobilie befindet sich in einer ruhigen Wohnstraße im Niederkrüchtener Ortsteil Varbrook. Die Umgebung ist geprägt von gepflegten Ein- und Zweifamilienhäusern sowie großzügigen Grundstücken und bietet ein angenehmes, naturnahes Wohnumfeld. Durch die Lage in einer Anwohnerstraße profitieren Sie von wenig Verkehr und hoher Privatsphäre. Die Infrastruktur des täglichen Bedarfs ist gut erreichbar: Einkaufsmöglichkeiten, Ärzte, Apotheken sowie Schulen und Kindergärten befinden sich in Niederkrüchten. Pendler profitieren von der guten Anbindung an die B221 und die A52 mit schnellen Verbindungen Richtung Mönchengladbach, Viersen, Düsseldorf und in die Niederlande. Ein besonderes Highlight ist die Nähe zum Naturpark Schwalm-Nette, der mit seinen Wäldern, Seen und Radwegen einen hohen Freizeit- und Erholungswert bietet.

41372 Niederkrüchten

Die Karte dient lediglich als Orientierungshilfe und stellt nicht die exakte Lage dar. Die vollständige Adresse erhalten Sie bei uns.

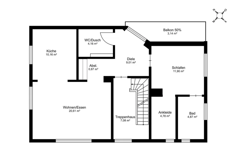
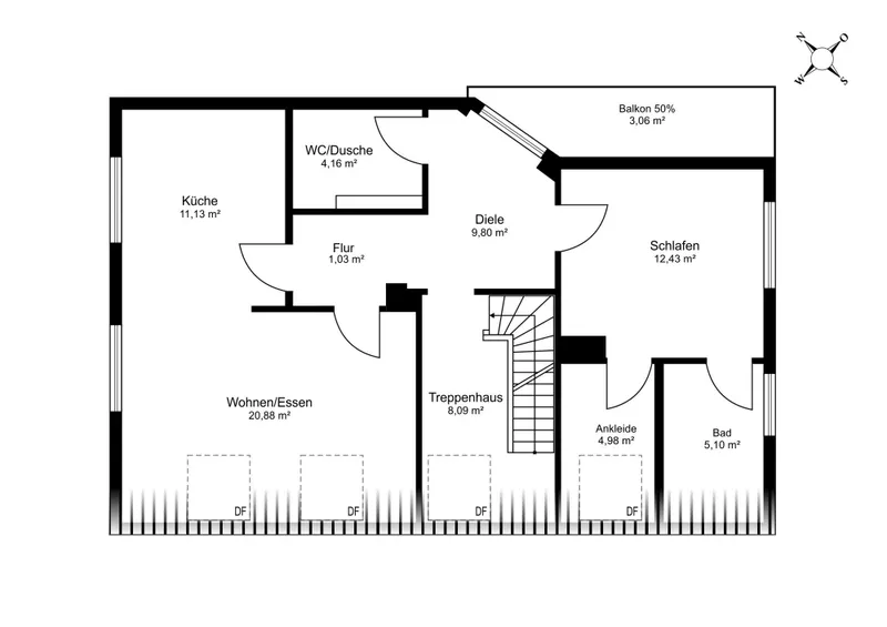
Grundrisse

Energieausweis

Energiedaten

Energieausweistyp

Bedarf

Gültig bis

2035-11-12

Energieeffizienzklasse

C

Baujahr

2021

Wesentlicher Energieträger

ERDGAS_LEICHT

Befeuerungsart

Gas, Solar

Energieeffizienz

A+

A

B

C

D

E

F

G

H

0

30

50

75

100

130

160

200

250

Endenergiebedarf

85,64 kWh/(m²a)